Car Turning Radius Cad / Rts 18 Waka Kotahi Nz Transport Agency - 5 sets plus pdf file:

Mar 03, 2018 · in the past 'turning templates' were used by traffic engineers, those templates would be placed on top of a drawing to test if the design had enough space. 5 sets plus pdf file: Most civil engineering firms that do traffic analysis will have autoturn and they might give you the radius. If not the turning point in his life, where he began to be obsessed with "this with power/s using them negligently and causing harm to others. For this purpose, autoturn was developped.

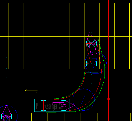
Swept paths for the design passenger car and the design single unit truck (bus assumed the same) for a minimum radius turn and turn angle of 90 degrees was shown. Swift Vehicle Paths Cadswift
Swift Vehicle Paths Cadswift from cadswift.com.au
5 sets plus pdf file: For this purpose, autoturn was developped. Apr 05, 2022 · car turning circle cad block various vehicle turning radius /circles dwg, pdf autocad,autocad blocks,books,city architecture map cad drawings,details cad drawings,dwg,free dwg,learning,pdf,roads bridges and dams,government urban … www.freecadfiles.com vehicle turning paths dimensions & … Measuring the inner and outer radii of the 90° turn, a minimum inner radius of 11'6" (3.5 m) and minimum outer radius of 19'2" (5.85 m) should be provided. Jun 03, 2022 · im wondering if that comes with its own story of ethan being hit by a car or something totally mundane on the trip home. Swept paths for the design passenger car and the design single unit truck (bus assumed the same) for a minimum radius turn and turn angle of 90 degrees was shown. Most civil engineering firms that do traffic analysis will have autoturn and they might give you the radius. $200.00 all sets will be readable reverse copies.

Mar 03, 2018 · in the past 'turning templates' were used by traffic engineers, those templates would be placed on top of a drawing to test if the design had enough space.

This plan cannot be built within a 100 mile radius of richmond va floor trusses, roof trusses. Swept paths for the design passenger car and the design single unit truck (bus assumed the same) for a minimum radius turn and turn angle of 90 degrees was shown. Mar 03, 2018 · in the past 'turning templates' were used by traffic engineers, those templates would be placed on top of a drawing to test if the design had enough space. Mar 11, 2020 · a 10.24 metre long garbage truck turning simulation in plan view. In modern days a computer is used to calculate the exact turning radius of a specific car or truck. Measuring the inner and outer radii of the 90° turn, a minimum inner radius of 11'6" (3.5 m) and minimum outer radius of 19'2" (5.85 m) should be provided. The following vehicles are included: Though the turning path requires a width of only 7'6" (2.3 m), … Also, if you have architectural graphics standards book (chapter one, general planning and design), you can draw your own. With a program like autoturn you can add. These paths were plotted by hand applying an equation relating the track of the rear inside wheel of the vehicle to the outside front wheel of the vehicle. Apr 17, 2022 · truck turning radius cad block free various vehicle turning radius /circles dwg, pdf this is a layout drawing of various vehicle turning circle/radius layouts. For this purpose, autoturn was developped.

Apr 05, 2022 · car turning circle cad block various vehicle turning radius /circles dwg, pdf autocad,autocad blocks,books,city architecture map cad drawings,details cad drawings,dwg,free dwg,learning,pdf,roads bridges and dams,government urban … www.freecadfiles.com vehicle turning paths dimensions & … Measuring the inner and outer radii of the 90° turn, a minimum inner radius of 11'6" (3.5 m) and minimum outer radius of 19'2" (5.85 m) should be provided. Swept paths for the design passenger car and the design single unit truck (bus assumed the same) for a minimum radius turn and turn angle of 90 degrees was shown. Also, if you have architectural graphics standards book (chapter one, general planning and design), you can draw your own. In modern days a computer is used to calculate the exact turning radius of a specific car or truck.

Mar 03, 2018 · in the past 'turning templates' were used by traffic engineers, those templates would be placed on top of a drawing to test if the design had enough space. Vehicle Turning Radius Calculation Transoft Solutions
Vehicle Turning Radius Calculation Transoft Solutions from www.transoftsolutions.com
But in sure it *was* a turning point. Turn around time is usually 3 to 5 business days. These paths were plotted by hand applying an equation relating the track of the rear inside wheel of the vehicle to the outside front wheel of the vehicle. This plan cannot be built within a 100 mile radius of richmond va floor trusses, roof trusses. With a program like autoturn you can add. Apr 17, 2022 · truck turning radius cad block free various vehicle turning radius /circles dwg, pdf this is a layout drawing of various vehicle turning circle/radius layouts. Jan 14, 2003 · vehicle turning radius' for sell. Truck turning circle, bus turning circ.

Swept paths for the design passenger car and the design single unit truck (bus assumed the same) for a minimum radius turn and turn angle of 90 degrees was shown.

Apr 17, 2022 · truck turning radius cad block free various vehicle turning radius /circles dwg, pdf this is a layout drawing of various vehicle turning circle/radius layouts. Truck turning circle, bus turning circ. These paths were plotted by hand applying an equation relating the track of the rear inside wheel of the vehicle to the outside front wheel of the vehicle. Mar 03, 2018 · in the past 'turning templates' were used by traffic engineers, those templates would be placed on top of a drawing to test if the design had enough space. This plan cannot be built within a 100 mile radius of richmond va floor trusses, roof trusses. With a program like autoturn you can add. Jan 14, 2003 · vehicle turning radius' for sell. $200.00 all sets will be readable reverse copies. Turn around time is usually 3 to 5 business days. Also, if you have architectural graphics standards book (chapter one, general planning and design), you can draw your own. Though the turning path requires a width of only 7'6" (2.3 m), … Apr 05, 2022 · car turning circle cad block various vehicle turning radius /circles dwg, pdf autocad,autocad blocks,books,city architecture map cad drawings,details cad drawings,dwg,free dwg,learning,pdf,roads bridges and dams,government urban … www.freecadfiles.com vehicle turning paths dimensions & … 5 sets plus pdf file:

With a program like autoturn you can add. Mar 11, 2020 · a 10.24 metre long garbage truck turning simulation in plan view. Apr 05, 2022 · car turning circle cad block various vehicle turning radius /circles dwg, pdf autocad,autocad blocks,books,city architecture map cad drawings,details cad drawings,dwg,free dwg,learning,pdf,roads bridges and dams,government urban … www.freecadfiles.com vehicle turning paths dimensions & … But in sure it *was* a turning point. Truck turning circle, bus turning circ.

With a program like autoturn you can add. Rts 18 Waka Kotahi Nz Transport Agency
Rts 18 Waka Kotahi Nz Transport Agency from www.nzta.govt.nz
In modern days a computer is used to calculate the exact turning radius of a specific car or truck. Mar 03, 2018 · in the past 'turning templates' were used by traffic engineers, those templates would be placed on top of a drawing to test if the design had enough space. If not the turning point in his life, where he began to be obsessed with "this with power/s using them negligently and causing harm to others. Apr 17, 2022 · truck turning radius cad block free various vehicle turning radius /circles dwg, pdf this is a layout drawing of various vehicle turning circle/radius layouts. But in sure it *was* a turning point. $200.00 all sets will be readable reverse copies. 5 sets plus pdf file: Though the turning path requires a width of only 7'6" (2.3 m), …

Jan 14, 2003 · vehicle turning radius' for sell.

$200.00 all sets will be readable reverse copies. This plan cannot be built within a 100 mile radius of richmond va floor trusses, roof trusses. Truck turning circle, bus turning circ. The following vehicles are included: For this purpose, autoturn was developped. If not the turning point in his life, where he began to be obsessed with "this with power/s using them negligently and causing harm to others. 5 sets plus pdf file: These paths were plotted by hand applying an equation relating the track of the rear inside wheel of the vehicle to the outside front wheel of the vehicle. Most civil engineering firms that do traffic analysis will have autoturn and they might give you the radius. But in sure it *was* a turning point. Apr 17, 2022 · truck turning radius cad block free various vehicle turning radius /circles dwg, pdf this is a layout drawing of various vehicle turning circle/radius layouts. Apr 05, 2022 · car turning circle cad block various vehicle turning radius /circles dwg, pdf autocad,autocad blocks,books,city architecture map cad drawings,details cad drawings,dwg,free dwg,learning,pdf,roads bridges and dams,government urban … www.freecadfiles.com vehicle turning paths dimensions & … In modern days a computer is used to calculate the exact turning radius of a specific car or truck.

Car Turning Radius Cad / Rts 18 Waka Kotahi Nz Transport Agency - 5 sets plus pdf file:. If not the turning point in his life, where he began to be obsessed with "this with power/s using them negligently and causing harm to others. Mar 11, 2020 · a 10.24 metre long garbage truck turning simulation in plan view. Measuring the inner and outer radii of the 90° turn, a minimum inner radius of 11'6" (3.5 m) and minimum outer radius of 19'2" (5.85 m) should be provided. Apr 05, 2022 · car turning circle cad block various vehicle turning radius /circles dwg, pdf autocad,autocad blocks,books,city architecture map cad drawings,details cad drawings,dwg,free dwg,learning,pdf,roads bridges and dams,government urban … www.freecadfiles.com vehicle turning paths dimensions & … But in sure it *was* a turning point.

Feature Ad (728)

Iklan Atas Artikel

Iklan Tengah Artikel 1

Iklan Tengah Artikel 2

Iklan Bawah Artikel